5 Bed Duplex Design House Plan Australian : - Preliminary House Plan Set
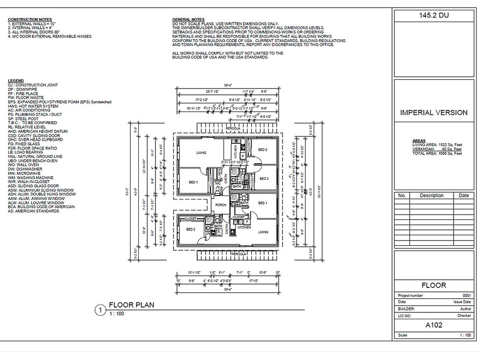
Our Dual Key House Plan: 145.2 DU
This House Plan Set is designed to help you with quotes and pricing or even create your own design ideas. You can use our 5 bedroom 145.2 DU Duplex Design for building, or use it as a guide to creating your own 5 bedroom Duplex Design floor plan.
You can also upgrade to full construction plans or request modifications to our plan through us, or use our plan as a starting point with your own draftsman.
Plan Features
- 5 Bedroom ( 3 x 2 Dual Family )
- 3 Bathrooms
- 2 Kitchens
- 2 Laundry's
- 2 Living Rooms
- 2 Entry's
- Private Porch
- 2 Private Pergola / Patios
Room Sizes Metric
UNIT 1
Bed 1: 3.4 x 3.0
Bed 2: 3.0 x 3.0
Bed 3: 3.0 x 3.0
Living rm: 5.2 x 3.4
UNIT 2
Bed 1: 3.3 x 3.0
Bed 2: 3.0 x 2.8
Living rm: 5.4 x 3.0
Area Sizes Metric
Living : 141.45 m2
Porch: 3.78 m2
Total Area: 145.2 m2
Plan Feet & Inches
Room Sizes Feet & Inches
UNIT 1
- Bed 1: 11' 11” x 9' 9”
- Bed 2: 9' 10” x 9' 9”
- Bed 3: 8' 5” x 9' 7”
- Living rm: 17' 2” x 11'16”
UNIT 2
- Bed 1: 10' 9” x 9' 9”
- Bed 2: 9' 0” x 9' 8”
- Living rm: 17' 10” x 9' 9”
Area Sizes Feet & Inches
- Living : 1522 Sq. Feet
- Porch : 40 Sq. Feet
- Total Area: 1566 Sq. Feet
Preliminary Set Of Plans Includes:
- Builders Preliminary Elevation Plans
- Builders Preliminary Floor Plan
- Copyright Release for building
- Sent to you in PDF Format
Why Buy Our Preliminary Set Of Plans?
Our customers are satisfied or very satisfied with the reliability of our products :
- Ideal for quoting from builders before moving onto full construction plans
- Ideal as a starting point before sitting down with the draftsman
- Ideal for using to create your own ideas
- Ideal for builders to use on web sites
- Ideal for builders to meet with clients and make modifications to suit client needs
- Ideal for meeting with councils to see if they will accept the concept layout, before submitting for approval.
- Saves time staring at a blank piece of paper as a starting point
- Saves you time and money
- Stunning Affordable Home Designs
- Designs from leading designers
- No worry about breaching copyright
- Great New Designs
- Instant Download
- Digital Book to use on all computers
Satisfaction Guarantee
- We give 100% satisfaction guarantee for all of our products.
- If there are any problems we will fully refund your money.
- We guarantee the items we sell are as described & pictured
- Every effort is made to provide you with 100% accurate description
- We are committed to complete customer satisfaction
- In case of any questions or problems please contact us by e-mail
Dual Family Home Design: 145.2 DU
Special Offer
Buy this concept plan and get an option to upgrade to pre-drawn full construction plans for only $595.00
Normal price $1295.00
What's Included in working drawings Upgrade
- 3D Front Render
- Floor Plan Render
- Floor Plan fully detailed
- Elevations Plan fully detailed
- Building Section fully detailed
- Bracing Plans
- Electrical Plans
- Copyright release to build
For Custom changes/modifications to this plan
Buy this concept plan and then you will receive our detailed concept plan along with an easy to follow custom change form (note: your concept plan price will be discounted off the custom design price).




























































